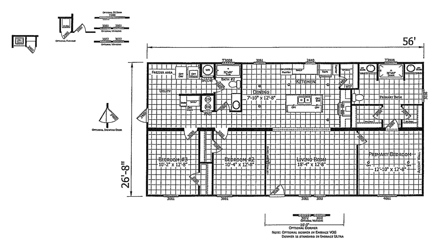
Mina | 3 Beds · 2 Baths · 1493 SqFt

advertisement
Mina Price Request
1-800-965-8403
Standard Features
The Mina is part of the Embrace VOG Series
CONSTRUCTION:
- Energy Star Certified
- Built to Wind Zone 2
- 5/8” T&G OSB Floor Decking
- Fiberglass Insulation: Floor R-22, Walls R-13, Roof R-30
- R-8 Insulated Overhead Ducts
- 8’ Sidewall – 2×4 Ext Walls 16” OC
- 2×6 Floor Joists in 14’ or 28’ Wides; 2 x 8 Floor Joists in 16’ or 32’ Wides, 16” OC
- Double Marriage Wall
- Finished Textured Ceiling
- OSB End Walls with House Wrap
- OSB Roof Sheathing
- Continuous Ventilation System
- Electric 40 Gallon Water Heater with Pan
- Detachable Hitches – 99 ½” Wide Chassis
- Plumbed Drain lines
Exterior:
- 3 Tab Shingles
- Vinyl Lap Siding – White Corner Trim
- Hardie Fascia and Vinyl Soffit
- Ridge cap Ventilation
- 6/6 Vinyl Low-E Insulated Windows
- Shutters – Front Door Side
- 16’ Dormer- Optional
- 1 Exterior Hose Bib
Exterior Doors:
- 36 Panel Door W/Storm
- 80” Cottage Rear Door
Electrical:
- 200 Amp Main Panel Box
- 1 Exterior GFI Standard
- Smoke Detectors Per Code
- Plumb and Wire for Washer & Dryer
- Dryer Vent Installed
- LED Can Lights T/O
- USB Port
- Exhaust Fans in Baths
- Exterior Lights at each Exterior Door
- Programmable Honeywell Thermostat
Interior:
- VOG
- 2 Panel Doors with Black Hinges and Knobs T/O)
- Living Room Accent Wall- Per Plan
- Coffee Bar w/ Open Shelving (Model Specific)
- Floor Mounted Door Stops T/O
- Diamondflor Rolled Lino T/O (W/Matching Transition Strip Multi-Section)
- Ventilated Shelving in Closets
- Whole House Shut Off
- 2 ¼” Trim in Impact Area
Appliances:
- 30” Basic Electric Range
- 18’ FF Refrigerator
- Dishwasher- Optional
- Plumb for Icemaker
- Stainless Appliances
Kitchen:
- Mission Cabinet Doors – 6” Black Bar Pulls and Hidden Hinges
- Drawer Over Door Cabinets
- Vinyl Lined O/H Cabinets
- 7” Stainless Sink
- Rolled Edge Laminate Countertops with 2 Rows of Ceramic in Kitchen
- Black Gooseneck Kitchen Faucet W/ Pull- Down Sprayer
- 40” Overhead Cabinets
- Matt Black 36” Vented Range Hood W/Light
Baths:
- Mission Cabinet Doors – 6” Black Bar Pulls and Hidden Hinges
- Rolled Edge Laminate Countertops with 1 Row of Ceramic
- Water Saver Commodes
- 36” Vinyl Lined Vanities
- 60” F/G Tub/Shower in Master Bath
- 60” F/G Tub/Shower in Hall Bath
- Black Metal Faucets for Sinks and Showers
- China Bath Lavs
- Large Mirror Over Lav w/ Black Mirror Trim
Warranty:
- One (1) Full year
- Optional Extended Warranty Available

